- 2025-10-08 (水) 8:00
- 電気通信工学科
こんにちは、電気通信工学科の藤井です。
10月に入り、日中はまだ暑いくらいですが、朝晩はずいぶんと涼しくなりました。
寒暖差が大きいので、体調をくずさないように注意してください。

本日の実習は、キュービクルを使います。
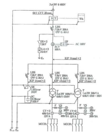
「キュービクル」は、発電所から変電所を通して送られる6600Ⅴを受電して100Ⅴ、200Ⅴに降圧する受電設備を収納した金属製の箱です。
小さな電気室、ともいえます。

例として、箱内の機器構成図です。
キュービクルは、工場で製作して現地で設置と接続すればよいので、工期を短縮できる利点があります。
省スペース、安全性、経済性の利点もあり広く利用されています。
普段意識しない設備ですが、高電圧を敷地に引き込むのに必ず必要で、建物の屋上や敷地の隅に設置されています。
みなさんがよく利用するコンビニの敷地内にもあります。

屋上のキュービクルに向かう前に、田中先生が保護用具の説明されます。
高圧用絶縁手袋は、定期的に絶縁性能試験をします。手袋に穴があれば感電してしまうからです。
6600Ⅴに感電したら、死亡事故につながります。

保護具を着用して、キュービクル内部を観察します。

どこから受電して、降圧して送るか線をたどっていきました。
図面を見て実物を見ることで、想像できたところとできなかったところがハッキリします。
これまで学んできた図面が実物としてしっかりとイメージできる有意義な時間になりました。
- Newer: 2025年度の10月期生新入生オリエンテーションを行いました
- Older: 【オープンキャンパス通信】No.7